AWALOS – Autarke Wärmeversorgung aus lokaler Sonnenenergie

Das Pilotprojekt AWALOS demonstriert die ganzjährige Wärmeversorgung von zwei Mehrfamilienhäusern in Zürich-Höngg ausschliesslich mit lokaler Sonnenenergie – ohne Netzstrom im Winter. Es kombiniert Photovoltaik, Solarthermie, Wärmepumpe, saisonalen Wärmespeicher und Batterie und prüft die Machbarkeit des Minergie-Zusatzes «Netto-Null 2050».

Wirkungsbereich
Energieerzeugung
Branche
Bauwirtschaft
Projektstand
laufend
Projektart
Pilot- und Demonstrationsanlage
Projektpartner
Kämpfen Zinke + Partner AG, OST, naef energietechnik ag, Minergie

Ausgangslage

  • Der Ersatz fossiler Heizungen durch Wärmepumpen erhöht den Winterstrombedarf; der Ausbau der Photovoltaik belastet das Stromnetz.
  • Winterstrom ist CO₂-intensiver (bis 160 g CO₂/kWh), was die Klimabilanz von Wärmepumpen verschlechtert.
  • Wärmeautarke Gebäude senken sowohl die Netzbelastung wie auch die Emissionen im Betrieb, sind aber bisher teuer.

Projektbeschrieb

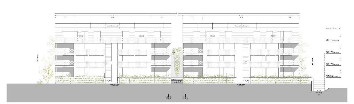
Südfassaden der geplanten Mehrfamilienhäuser im architektonischen Entwurf als Südansicht.
Südansicht der in Zürich Höngg ein Mehrfamilienhäuser. Quelle: Kämpfen Zinke + Partner AG

In Zürich-Höngg entstehen zwei baugleiche Mehrfamilienhäuser (je 8 Wohnungen, Minergie-P-Eco). Ziel ist eine vollständig solare Wärmeversorgung ohne Netzstrom. Das Energiesystem kombiniert Photovoltaik, Solarthermie, Wärmepumpe, Warmwasserspeicher und Batterie. Zwei unterschiedliche Systemkonfigurationen werden geplant, gebaut und messtechnisch ausgewertet. Zudem wird geklärt, wie sich die Anforderungen des neuen Minergie-Zusatzes «Netto-Null 2050» auf die Kosten der beiden Neubauten auswirken.

Projektziele

  • Ganzjährige Wärmeversorgung ohne Netzstrom zu marktfähigen Gestehungskosten
  • Vergleich zweier Systemkonfigurationen für Effizienz und Kosten, Evaluation der optimalen Speichergrössen mittels integraler Simulation
  • Prüfung der Minergie-Anforderungen «Netto-Null 2050» hinsichtlich Machbarkeit und Kosten

Ähnliche Projekte

Projektpartner

  • Kämpfen Zinke + Partner: Beat Kämpfen, Antragsteller
  • OST Institut für Solartechnik: Florian Ruesch
  • naef energietechnik: René Naef
  • Minergie: Sabine von Stockar

Kontakt

Pilotprojekte Energie – Energie

Adresse

Stampfenbachstrasse 12
8090 Zürich
Route (Google)

Telefon

+41 43 258 81 16

Michael Tobler

+41 43 259 30 13

Beat Lehmann

E-Mail

pilotprojekte@bd.zh.ch

Für dieses Thema zuständig: