Instandsetzung Bodmerhaus Universität Zürich

Projektstand
abgeschlossen
Objektart
Hochschulbauten
Gemeinde
Zürich

Steckbrief

Betreff
Angabe
Bauherrschaft Kanton Zürich Baudirektion, Hochbauamt
Nutzer Universität Zürich
Architektur Ernst Niklaus Fausch Partner AG, Zürich
Kreditsumme 9.784 Mio. Fr.
Bauzeit April 2020 bis 2023
Die Visualierung der Innenansicht zeigt das Ensemble von Zimmern mit unterschiedlichen Geschichten und Ausstrahlungen.
Haus der Zimmer, Innenausbau aus verschiedenen Epochen. Quelle: Nightnurse Images AG

Bauaufgabe

Das Bodmerhaus, benannt nach seinem bekanntesten Bewohner Johann Jakob Bodmer (1698-1783), wurde mehrmals umgebaut, ergänzt und verändert. Von der barocken Bausubstanz sind die Tragstruktur und Wand- und Deckenmalereien erhalten. Ausstattungen aus dem frühen und späten 19. Jahrhundert bis in die 1960er-Jahre sind ebenfalls als schützenswert klassifiziert. Der grosse Sanierungsbedarf und der Auszug des Thomas Mann Archivs veranlassten den Kanton Zürich das Bodmerhaus umfassend Instand zu setzen. Das schadhafte Tragwerk muss ertüchtigt und Anpassungen an Fluchtwegen vorgenommen werden. Restauration, Aufwertung und Neuinterpretation der Innenräume sollen ein abgestimmtes Ganzes ergeben, das auf die bedeutsame Vergangenheit des Gebäudes und seiner Bewohner verweist und auch als ein Sinnbild für zukünftige Nutzer verstanden werden kann.

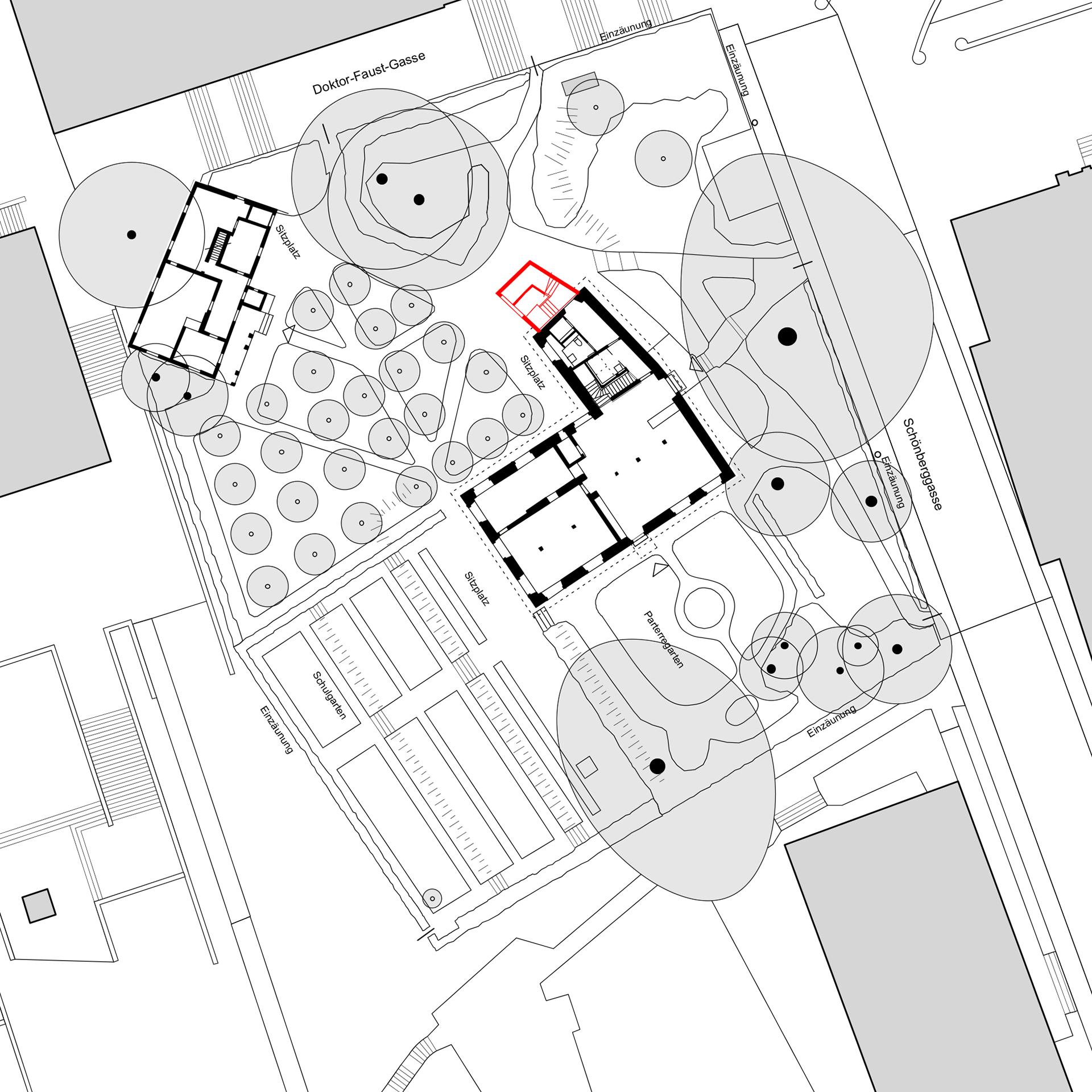
Situationsplan mit dem Gebäude und dem Garten. Das neue Fluchttreppenhaus ist rot eingezeichent.
Situationsplan. Quelle: Ernst Niklaus Fausch Partner AG, Zürich

Architektur

Das architektonische Konzept interpretiert das Bodmerhaus als ein «Haus von Zimmern». Die Eingangshalle und die Vorräume werden neugestaltet. Holzverkleidungen geben ihnen eine wohnliche Stimmung und lassen die unterschiedlichen historischen Zimmer umso deutlicher in Erscheinung treten. Die Räume im Erdgeschoss mit barocken Wand- und Deckenbemalungen werden restauriert. In den Obergeschossen orientieren sich die Erscheinungen der Zimmer an den jeweils zeittypischen Innenausstattungen aus dem 19. und dem 20. Jahrhundert. Die bestehende Treppe bleibt als primärer Erschliessungsraum erhalten, was für die Erlebbarkeit der Innenräume entscheidend ist. Ein Anbau mit Fluchttreppe anstelle eines Waschhauses auf der Rückseite des Gebäudes akzentuiert die rückwärtige Lage. Geschlossen und mural gestaltet, ordnet er sich der Präsenz des Gebäudes unter.

Baufortschritt

Verwenden Sie die Akkordeon-Bedienelemente, um die Sichtbarkeit der jeweiligen Panels (unterhalb der Bedienelemente) umzuschalten.

Kontakt

Hochbauamt

Adresse

Zollstrasse 36
8090 Zürich
Route (Google)
Adresse wurde kopiert Adresse konnte nicht kopiert werden

Telefon

+41 43 259 28 42

 

Öffnungszeiten Telefonzentrale

Montag bis Freitag
08.00 bis 12.00 Uhr
13.30 bis 17.00 Uhr
 

Öffnungszeiten Empfang

Montag bis Freitag
07.30 bis 17.30 Uhr

E-Mail

hba.kanzlei@bd.zh.ch

Für dieses Thema zuständig: