Instandsetzung Bildungszentrum Limmattal

Projektstand
in Bearbeitung
Objektart
Berufsfachschulen
Gemeinde
Dietikon

Steckbrief

Betreff
Angabe
Bauherrschaft Kanton Zürich
Nutzer Bildungszentrum Limmattal
Architektur Ernst Niklaus Fausch Partner AG
Kreditsumme 42.1 Mio. Fr.
Bauzeit Juli 2025 bis August 2027
Foto auf welchem die Umgebung zu sehen ist. mit einer grossflächigen Wiese Bäumen und im Hintergrund das Bildungszentrum.
Süd- und Ostfassade Berufsschulhaus, Parkanlage Kirchhalde. Quelle: Marcel Rickli.

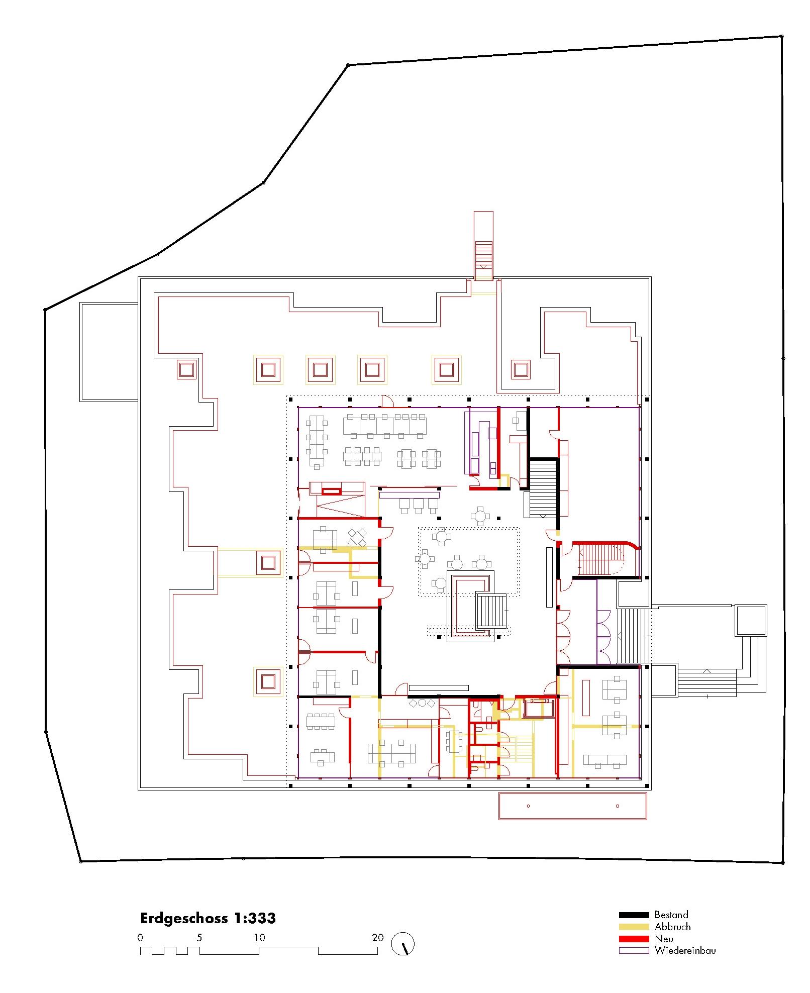
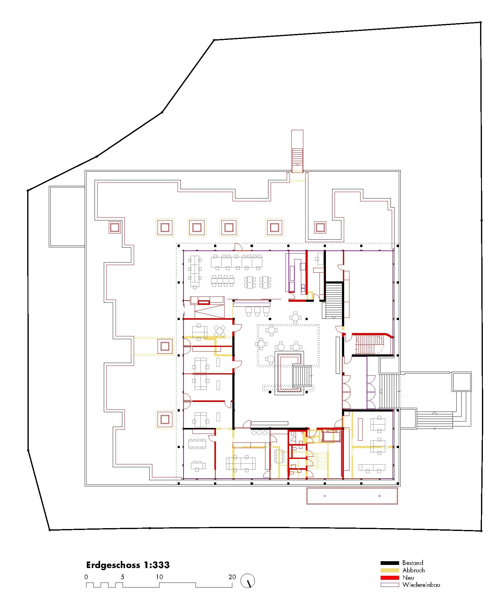
Bauaufgabe

Das Berufsschulhaus wurde von 1969 bis 1970 nach den Plänen des Architekten Georges Künzler als zeittypischer, funktionaler Kubus erbaut. Heute wird das Bildungszentrum Limmattal als Kompetenzzentrum für Logistik-, Strassentransport- und Recyclingberufe genutzt. Das Gebäude steht als wichtiger Zeitzeuge für die schweizerische Grundhaltung, dass gute Handwerksarbeit mit einer soliden Grundausbildung einhergeht. Ebenso widerspiegelt es mit seiner Dominanz gleichsam den wirtschaftlichen Erfolg der Region Limmattal.

Das Gebäude befindet sich weitgehend im Originalzustand, weist jedoch eine mangelhafte Dämmung der Gebäudehülle sowie verschiedene strukturelle Probleme auf. Um einen zeitgemässen Schulbetrieb langfristig sicherzustellen, wird das Gebäude im Zeitraum zwischen Sommer 2025 und Sommer 2027 erneuert.

Umgebungsplan. Quelle: Ernst Niklaus Fausch Partner AG.

Architektur

Das Berufsschulhaus aus den späten 60er-Jahren ist ein wichtiger architekturhistorischer Zeuge der Nachkriegszeit. Das Gebäude ist im Inventar der Denkmalschutzobjekte aufgeführt. Die äussere Erscheinung ist geprägt von gut proportionierten Fassaden in Ortbeton, kannelierten Betonplatten und Aluminiumschiebefenstern mit schlanken Profilen.

Das Gebäude bedingt einen sensiblen Umgang mit der erhaltenen Originalsubstanz und eine möglichst subtile Integration aller neuen bedingten Interventionen. Die Instandsetzungsmassnahmen wurden in enger Zusammenarbeit mit der kantonalen Denkmalpflege erarbeitet. Das äussere Erscheinungsbild der Fassade bleibt erhalten und sämtliche baulichen Anpassungen werden denkmalverträglich und möglichst ressourcenschonend umgesetzt.

Nachhaltigkeit

Die Gesamtinstandsetzung erfüllt die aktuellen, energetischen Anforderungen und wird nach dem Minergie-Eco-Standard für Umbauten und nach SNBS Stufe Gold zertifiziert. Die Aluminiumfenster werden ertüchtigt und die Rahmen überdämmt. Auf dem Flachdach entsteht eine Photovoltaikanlage. Die eingesetzten Materialien folgen den Vorgaben für eine minimale Umweltbelastung in Herstellung, Verarbeitung, Nutzung und Entsorgung.

Netzdiagram über die verschiedenen Themen, welche durch SNBS geprüft wurden.
Netzdiagramm zu den durch SNBS geprüften Themen. Quelle: Hochbauamt Kanton Zürich.

Kunst und Bau

Das Künstler-Duo Veli & Amos versetzt die Treppenunterseiten im Atrium mit frischen Statements, welche zugänglich und zielgruppenorientiert die Freude am Lernen und die Wichtigkeit eines Zieles und Berufes vermittelt. Durch ihre ortsspezifischen Eingriffe mittels Flip-Flop-Lackierung und Neon-Signs referenzieren sie die beweglichen Lebensrealitäten der Lernenden.

Meilensteine

Meilenstein
Termin
Objektkredit September 2024
Baubewilligung Januar 2025
Baubeginn Juli 2025
Inbetriebnahme Mai 2027
Schulbeginn August 2027

Kontakt

Hochbauamt

Adresse

Zollstrasse 36
8090 Zürich
Route (Google)
Adresse wurde kopiert Adresse konnte nicht kopiert werden

Telefon

+41 43 259 28 42

 

Öffnungszeiten Telefonzentrale

Montag bis Freitag
08.00 bis 12.00 Uhr
13.30 bis 17.00 Uhr
 

Öffnungszeiten Empfang

Montag bis Freitag
07.30 bis 17.30 Uhr

E-Mail

hba.kanzlei@bd.zh.ch

Verwenden Sie die Akkordeon-Bedienelemente, um die Sichtbarkeit der jeweiligen Panels (unterhalb der Bedienelemente) umzuschalten.

Medienstelle der Baudirektion

Adresse
Walcheplatz 2
8001 Zürich
Route (Google)
Adresse wurde kopiert Adresse konnte nicht kopiert werden
Telefon
+41 43 259 39 00
E-Mail
media@bd.zh.ch

Für dieses Thema zuständig: